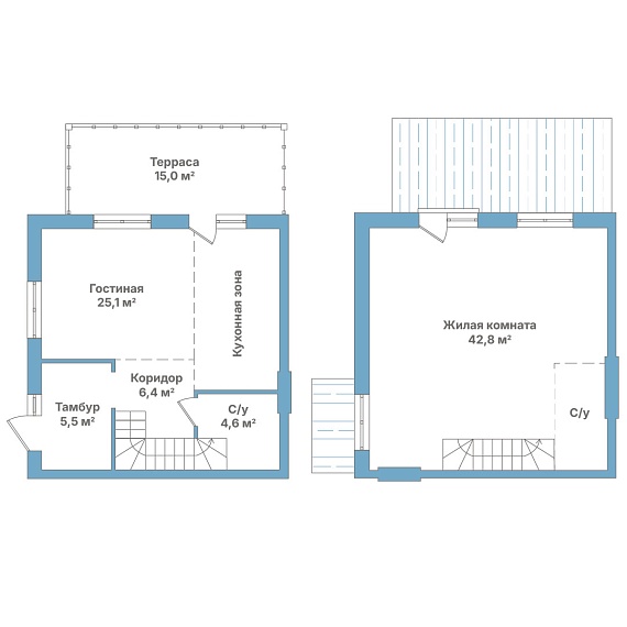
Планировка
Визуализации
3К таунхаус 88,9 м²
пос. Октябрьский, Мошковский район, Новосибирская область, Светлый жилой комплекс, ул. Ясная, 4а
Сдача в III кв. 20274 г.
8 445 500
95 000 ₽/м2
Жилая площадь
0 м2
Этаж
1 / 2
Тип дома
Кирпич
Метро
Заельцовская 35 мин.
Застройщик
ООО СЗ «Юга-Строй»
Забронировать
Двухуровневые таунхаусы
С индивидуальным парковочным местом
Расположение на карте
Получить бесплатную консультацию от ведущего специалиста
630132 , Россия, Новосибирская область, Новосибирск, ул. 1905 года, 69
Телефон: 8 (383) 315-61-43
Почта: info@01e.ru