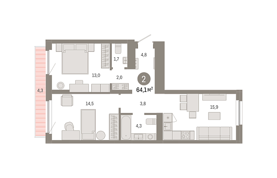
Планировка
Визуализации
2К квартира 64,08 м²
ул. Георгия Колоноды, 7 стр.
Сдача в II кв. 2028 г.
9 320 000
145 443 ₽/м2
Жилая площадь
27.45 м2
Этаж
7 / 12
Тип дома
Кирпично-монолитный
Метро
Заельцовская 10 мин.
Застройщик
ООО «Брусника»
Забронировать
Квартиры, в которых много света
Свобода и простор - это ваша новая квартира в ЖК "Да Винчи"Сквер у дома Подземный паркинг 10 минут до метро Закрытая территория
Расположение на карте
Получить бесплатную консультацию от ведущего специалиста
630132 , Россия, Новосибирская область, Новосибирск, ул. 1905 года, 69
Телефон: 8 (383) 315-61-43
Почта: info@01e.ru